KDS Design
48 Laity Fields
Camborne
Cornwall
TR14 8RT
Tel: 01209 613378
email: enquiries@kdsdesign.co.uk

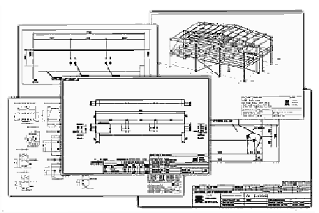
An additional benefit in using a 3D package such as this, is that the system also produces three dimensional drawings, from any given point of view, which gives all concerned a better idea of the finished structure.
There is no limit to the size or type of structure that can be worked on and we have worked on buildings and structures with a total weight in excess of 800 tonnes. We have extensive experience in this field of expertise and think of ourselves as specialists when it comes to staircases, walkways, platforms, ladders etc... With customers coming back to us repeatedly, for these skills and knowledge, as they know they can trust us to get the job done and be inline with current building regulations and to follow other statutory obligations.



Using Tekla Structures, the latest in Computerized Modeling Software dedicated to structural steelwork detailing and the production of fabrication drawings, we work in a real world 3D model. Where all the elements of the structure are entered into the system and the fabrication and part drawings, created automatically, are more accurate and efficiently produced than any 2D CAD systems.
This software package also produces a multitude of reports, including bolt and bolt location lists, part and bevel cut lists, member weights, etc. This enables our customer to incorporate these lists into their production programming, thus improving stock control, reducing waste and improving profit margins.
Although based right at the lowest tip of the UK, with modern communication such as the web and email, we are able to work on projects anywhere in the UK or the world for that matter. We have been contracted to work on various buildings from the Isles of Scilly to the Outer Hebrides.
If you would like further information about our steel detailing service or any other for that matter, please call or email us. Please check out some of our projects, by clicking on the link below.